Das Eigenheim vereint moderne Architektur mit Naturverbundenheit und Komfort. Trotz anfänglicher Bedenken wegen des herausfordernden Grundstücks hat Atmoshaus ein massgefertigtes Haus geschaffen, das die Bedürfnisse der Familie perfekt erfüllt. Hersteller: Atmoshaus AG



Manchmal fühlt sich eine Entscheidung einfach richtig an. So erging es dieser jungen Familie, als sie das Grundstück für ihr Eigenheim fand. Mit zwei kleinen Kindern und zwei verspielten Hunden suchten sie nach einem Ort, der Natur, Komfort und eine gute Anbindung an den Öffentlichen Verkehr vereint. Als sie an einem Samstag die Ausschreibung entdeckten, besichtigten sie die Parzelle umgehend. Ihr erster Gedanke? «Hier ein Haus zu bauen, wird schwierig.» Doch Atmoshaus bewies das Gegenteil: Bereits am Montag erfolgte der Ersttermin, kurz darauf die Vertragsunterzeichnung. Ein Kataloghaus passte nicht auf das besondere Grundstück, daher entstand eine massgefertigte Architektur, die sowohl die Lage als auch die familiären Bedürfnisse berücksichtigte.
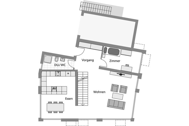
Das Herzstück des Hauses ist der offene Wohn- und Essbereich. Hier spielt sich das Familienleben ab – unter hohen Decken, mit grosszügigen Fenstern und einem schönen Blick ins Grüne. Die besondere Architektur mit ihren markanten Winkeln wurde anfangs als praktische Lösung zur Grundstücksnutzung entwickelt, ist aber heute ein gestalterisches Highlight. Ein weiteres besonderes Designelement ist die Treppe mit Glasgeländer, die den Eingangsbereich elegant mit dem Wohnbereich verbindet. Drei Stufen führen hinab in den offenen Raum und vermitteln sofort ein grosszügiges Raumgefühl. Die durchdachte Lichtplanung sorgt für eine angenehme Atmosphäre. Ein Lichtdesigner half dabei, ein optimales Konzept zu entwickeln, sodass in den hohen Räumen eine stimmige Beleuchtung herrscht. Im Obergeschoss stehen der Familie drei Schlafräume und ein Büro zur Verfügung. Eine separate, begehbare Ankleide sorgt für viel Stauraum. Für Ordnung und Komfort sorgen ein Keller mit grossem Lagerraum und ein Zentralstaubsauger, der den Alltag erleichtert.
Besucher sind oft überrascht von der Grosszügigkeit des Hauses – von aussen modern und stilvoll, von innen weitläufig und lichtdurchflutet. Besonders die drei Bäder und die moderne Architektur beeindrucken Familie und Freunde. Aussen laden zwei Terrassen zum Verweilen ein. Der erste Sitzplatz liegt erhöht direkt am Waldrand und bietet eine traumhafte Kulisse zum Entspannen oder Spielen. Der zweite Sitzplatz vor der Küche ist von Hecken geschützt – perfekt, um Mahlzeiten im Freien zu geniessen. Mit dem Wunsch nach einem Platz für die ganze Familie begann die Suche nach dem idealen Zuhause. Heute lebt die Familie in einem modernen, durchdachten Haus in naturnaher Umgebung – perfekt für eine glückliche Zukunft mit ihren Kindern und Hunden.


Technische Angaben (Pläne: Obergeschoss, Erdgeschoss)
Kategorie Systemhaus, Planhaus, Fertighaus, Typenhaus
Konstruktion Massivbau, Beton, Kalksandstein, Wärmedämmung
Dach Flachdach
Haustechnik Luft-Wasser-Wärmepumpe, Cheminée und Minergiestandard möglich
Raumangebot 6½ Zimmer, 174 m² Nettogeschossfläche
Liefergebiet Deutschschweiz
Preis Schlüsselfertiger Festpreis auf Anfrage


Hersteller:
Atmoshaus AG
6203 Sempach Station
Tel. 041 545 80 00
aus: Das Einfamilienhaus, Heft Nr. 2/2025