Das Einfamilienhaus mit Pool verbindet moderne Architektur, durchdachte Raumaufteilung und luxuriöse Details zu einem harmonischen Ganzen. Hersteller: freshhaus



In einem Wohnquartier in Hanglage steht ein beeindruckendes Einfamilienhaus, das mit seinen klaren Linien und einer durchdachten Architektur besticht. Geplant und gebaut von «freshhaus» bietet das Haus der jungen Familie ein modernes Wohnerlebnis auf drei Ebenen. Die Hanglage wird optimal genutzt und das neue Zuhause mit einem Pool im Garten lässt keine Wünsche offen. Von zwei Seiten überbrücken Treppenstufen den Höhenunterschied vom Strassenniveau bis zur Haustüre im Obergeschoss. Diese architektonische Lösung verleiht dem Haus eine einladende Präsenz.
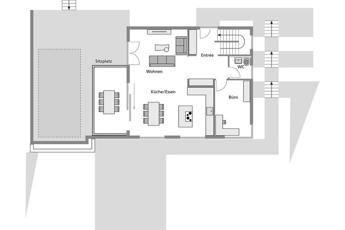
Ein grosszügiges Entrée mit Einbauschrank sorgt für Ordnung und Stauraum. Die integrierte, beleuchtete Garderobe aus dunklem Holz ist ein Blickfang und harmoniert perfekt mit der gegenüberliegenden Treppe, die mit Eichenparkett belegt ist. Der im gesamten Obergeschoss verlegte Marmorfussboden sorgt für ein edles Ambiente. Auf dieser Etage hat sich die Familie ein Arbeitszimmer eingerichtet, praktischerweise mit angrenzendem Gäste-WC. Küche, Ess- und Wohnbereich sind offen gestaltet und bieten der Familie viel Raum für gemeinsame Stunden. Besonders beeindruckend ist die Kücheninsel mit schwarzer Abdeckplatte, die dank geschickter Beleuchtung zu schweben scheint. Seitlich bringen zwei grosse Fenster viel Licht in die Küche, von dem auch der angrenzende Essplatz profitiert. Zusätzliche Glasschiebetüren lenken hier den Blick in den Garten. Der Aussensitzplatz mit angrenzendem Pool gehört zu den Highlights des Einfamilienhauses. Eine Stahlkonstruktion mit Glasdach und Lamellen als Sonnenschutz spendet an heissen Tagen angenehmen Schatten.
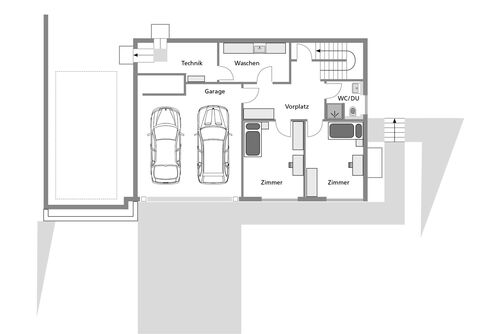
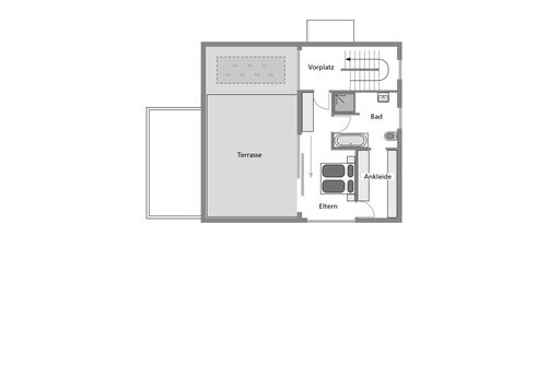
Im Erdgeschoss befinden sich zwei gleich grosse Kinderzimmer mit einem Duschbad. Auf dieser Etage sind auch der Hauswirtschaftsraum und die Haustechnik untergebracht. Eine Doppelgarage bietet ausreichend Platz für die Fahrzeuge. Im Keller darunter wartet eine Überraschung: Ein fast 50 Quadratmeter grosser Hobbyraum beherbergt eine Modelleisenbahnanlage. Im Attika finden die Eltern ihre Ruheoase. Das grosszügige Schlafzimmer hat eine begehbare Ankleide und zwei Zugänge zum geräumigen Bad mit Dusche und Badewanne. Eine über 30 Quadratmeter grosse Terrasse vor dem Schlafzimmer lädt zum Entspannen unter freiem Himmel ein. Die Familie geniesst ihr Zuhause und verweilt wahlweise im Gartenpool oder im Attika am Sitzfenster und geniesst die Aussicht. (el)


Technische Angaben (Pläne: Obergeschoss, Erdgeschoss)
Kategorie Konzepthaus, Systemhaus, Planhaus, Fertighaus, Typenhaus
Konstruktion Massivbau
Dach Flachdach mit extensiver Begrünung
Haustechnik Luft-Wasser-Wärmepumpe
Raumangebot 5½ Zimmer, 239 m² Bruttogeschossfläche
Liefergebiet Schweiz
Preis auf Anfrage



Hersteller:
freshhaus
9501 Wil
Tel. 071 913 46 46
aus: Das Einfamilienhaus, Heft Nr. 1/2025