In idyllischer Lage, neben einer Kapelle, hat sich eine junge Familie ihr ganz persönliches Wohnparadies geschaffen – und bei den Plänen selbst mitgezeichnet. Hersteller: Atmoshaus AG



Die Familie hatte klare Vorstellungen von ihrem Eigenheim. Es sollte Platz für die Kinder geben, die in einem Garten herumtollen würden, Raum für gesellige Abende mit Freunden und genug Rückzugsmöglichkeiten für alle. Auf einem idyllischen Hügel im Kanton Zürich fand sie ein Grundstück, das von Atmoshaus bebaut werden sollte. Die Kaufentscheidung viel schnell, denn die ruhige Lage auf dem Berg in der Nähe zu ihrem alten Wohnort Schlieren überzeugte. Die Hauspläne des Generalunternehmens Atmoshaus passten zunächst nicht hundertprozentig zu den Wünschen der Familie. Also griff sie selbst zum Stift, zeichnete ihre Vorstellungen und ging damit zum Architekten. Das gemeinsam erzielte Ergebnis ist ein Haus, das perfekt auf die Bedürfnisse seiner Bewohner zugeschnitten ist – von der Raumaufteilung bis zur Gestaltung der Küche.
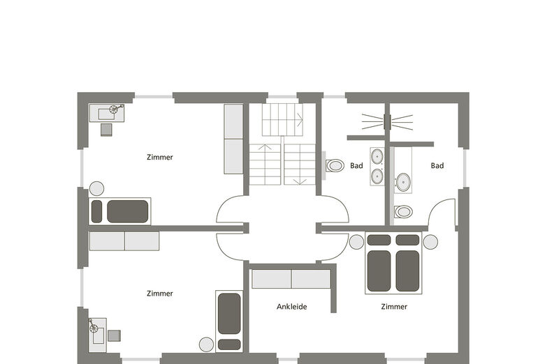
Die Lage in der Kernzone, direkt neben einer kleinen Kapelle, brachte Herausforderungen mit sich: Ein Satteldach war vorgeschrieben, doch die Bauherrschaft wollte im oberen Stock keine Dachschrägen. Die Lösung: ein zusätzlicher Dachstock, der den nötigen Charme mit maximaler Nutzbarkeit verbindet. Die Räume im Obergeschoss sind lichtdurchflutet und die bodentiefen Fenster prägen die Architektur des Hauses. Im Elternschlafzimmer hat sich das Paar eine begehbare Ankleide und einen direkten Zugang zum Duschbad verwirklicht. Ein weiteres Badezimmer ist mit Dusche und Doppellavabo ausgestattet. Zwei gleich grosse Räume werden als Kinder- und Gästezimmer genutzt. Der Wohn-, Koch- und Essbereich im Erdgeschoss beeindruckt mit seiner Offenheit. Hier trifft sich die Familie, hier werden Gäste empfangen, hier wird gekocht und gelacht. Die Küche ist ein Traum für jeden Hobbykoch: Eine fast drei Meter lange Kochinsel, zwei Backöfen und viel Platz für kulinarische Ausflüge in die Ferne – italienische Spezialitäten stehen oft auf dem Speiseplan. Grosse Fensterfronten eröffnen den Blick ins Grüne und lassen den Raum noch weitläufiger wirken. Der Garten mit der überdachten Terrasse zählt zu den beliebtesten Rückzugsorten der Bewohner.
Im Untergeschoss befinden sich ein ruhiges Arbeitszimmer und ein geräumiger Kellerraum, der neben der Haustechnik viel Stauraum bietet und Ordnung schafft. Die Doppelgarage fügt sich funktional und harmonisch in das Gesamtkonzept ein. Eine elegante Aussentreppe führt zum Haupteingang, der etwas oberhalb des Strassenniveaus liegt. Das Entrée mit angrenzendem Gäste-WC fungiert als stilvoller Empfangsbereich. Immer wieder zeigen sich Besucher beeindruckt von der besonderen Atmosphäre im Haus. Die Eigentümer selbst schätzen das durchdachte Zusammenspiel von Funktionalität und Behaglichkeit. Dieses Haus beweist, dass Wohnträume mit Entschlossenheit, Kreativität und einem verlässlichen Partner an der Seite Wirklichkeit werden können. (el)


Technische Angaben (Pläne: Obergeschoss, Erdgeschoss)
Kategorie Systemhaus, Planhaus, Fertighaus, Typenhaus
Konstruktion Massivbau, Beton, Kalksandstein, Wärmedämmung
Dach Satteldach mit Ziegeleindeckung, auch Flachdach möglich
Haustechnik Luft-Wasser-Wärmepumpe, Minergiestandard und Cheminée möglich
Raumangebot 6½ Zimmer, 174 m² Nettogeschossfläche
Liefergebiet Deutschschweiz
Preis Schlüsselfertiger Festpreis auf Anfrage


Hersteller:
Atmoshaus AG
6203 Sempach Station
Tel. 041 545 80 00
aus: Das Einfamilienhaus, Heft Nr. 4/2025